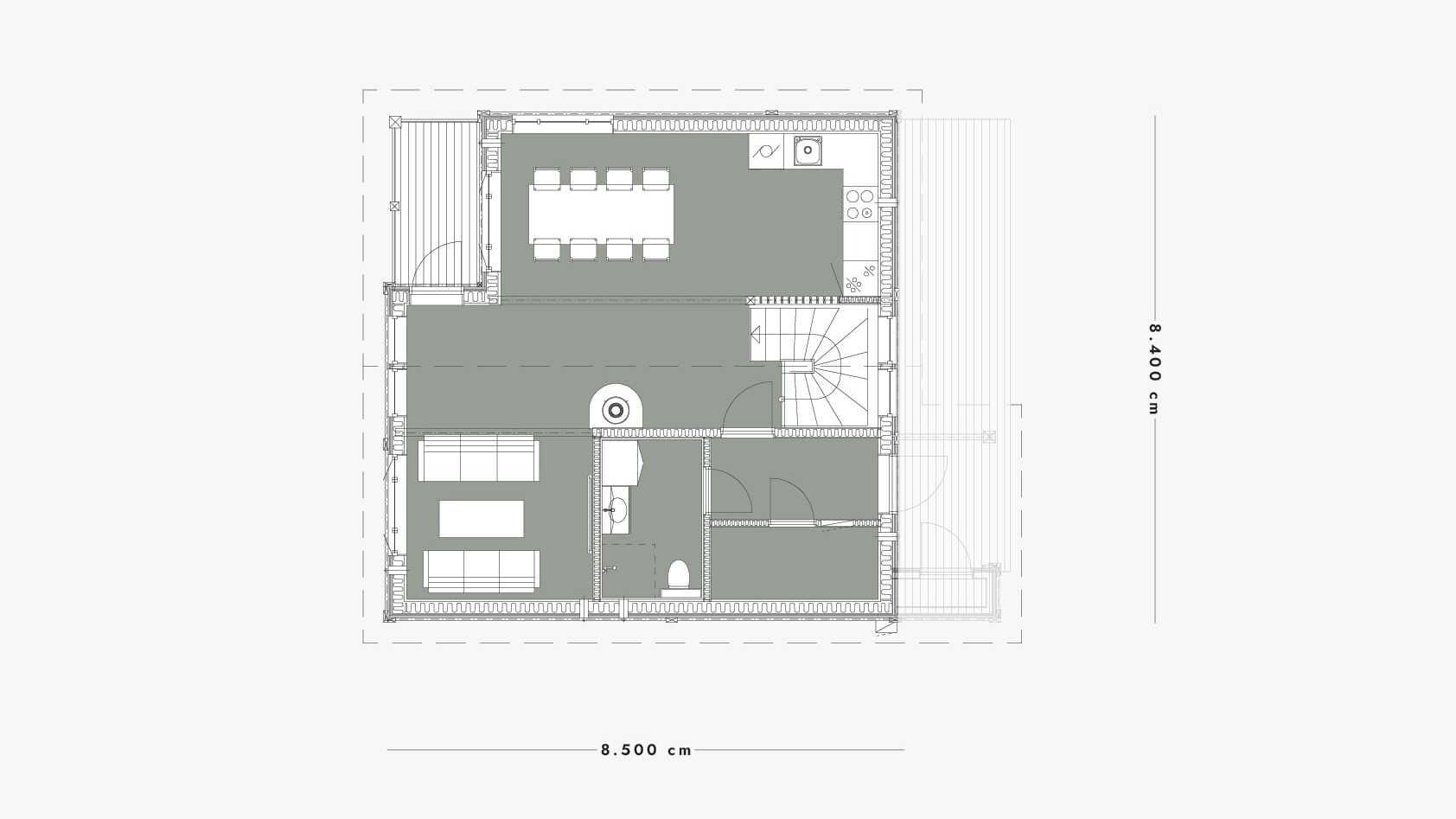
Specificaties
Vloeroppervlakte
127 – 134 m²
Slaapkamers
4
Badkamers
2
Terras
7,8 m² / 23,4 m²
Deze lodge is ruim opgezet en heeft twee verdiepingen met vier slaapkamers, twee badkamers en een sauna. Het type Varden 1 heeft een ingang vanaf de hoofdverdieping en Varden 2 heeft een ingang vanaf de begane grond.


